The combined talents of Ring’s End Kitchen & Bath Designer Jan Allen, Bryan & Brian Construction Company, and Susan Gregory Interiors turned the Robinson family’s small dark kitchen into a beautiful, open and airy space that connects the expanded kitchen to the family room. As with most renovations, this one was not without a challenge. A support beam needed to be installed to replace a wall that divided the space. Drain pipes and electrical wires were successfully rerouted for a fabulous end result!
The homeowner, Blake Robinson just happens to be a professional photographer and documented the renovation with the stunning photographs that follow.
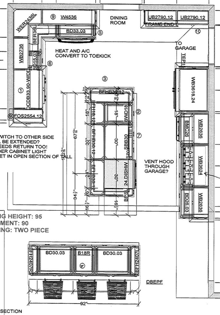
A section of the floor plan for the new kitchen.
The builder provided us with a BEFORE picture.
The same view AFTER the renovation: Looking over one island to the second island. The existing dining room and front lawn are visible beyond. The homeowners chose cabinetry by Candlelight. The door style is Chatham Shaker with a Snowflake finish.
Another view of the kitchen showing both islands. The ceiling beam above, 17 feet long, replaced the old kitchen wall and provided the needed support to expand the kitchen into the adjacent family room.
A side view of one of the islands. The new kitchen window is visible across the room.
The homeowners chose cabinet hardware from the Chareau Collection by Top Knobs in a polished chrome finish.
Voila! A view of the new combined space.







